『걷고싶은도시』95호(2018 여름호)에 기고한 글입니다. 이 글은 웹에서의 가독성을 위해 각주를 제거한 상태이니, 더 정확히 읽고 싶은 분은 위 링크를 눌러 pdf로 읽어주세요
서서울힙스터
1. 도시와 시장
도시에 사는 사람은 시장에서 필요한 물품을 산다. 알다시피 도시에서 자급자족을 하는 일은 정말 어렵다. 마땅한 농지가 없고, (대안적인 시도로) 도시농업을 한다 해도 농작의 량이 적으니 자급자족을 할 수 없다. 즉, 도시에 사는 사람들은 “반드시 시장에서 필요한 물품을” 산다. 그것도 상인이 생필품을 들여와 보관(저장)하고 화폐와 교환해주는 장소에 가서 산다.
“흔히 소비의 발전과 다양화가 이루어지는데 도시가 기여한 역할에 대해서는 이야기하면서도, 시민 중 가난한 사람이라도 반드시 시장에서 필요한 물품을 얻는다는 점이나, 도시가 결국 시장을 일반화시킨다는 점과 같이 중요한 사실에 대해서는 거의 언급하지 않는다.”
한국 사회에서 넓은 의미에서 ‘시장’의 변화는 “자유경쟁”에 의해 이루어진다고 이해되는 경우가 많다. 그러나 실상은 다르다. 무엇보다도 “제도들과 사회적 행위자들, 거래관계, 거래의 실행”이 뒤엉켜 변화가 이루어진다. 물론 제도가 도입된다 해서 단번에 변하는 건 아니다. 아래의 기사는 1970년대에도 ‘전근대’적인 시장이 존속한다며 답답함을 드러내고 있지만, 사회적 행위자들과 오래된 관계와 (실행의) 관습이란 그렇게 쉽게 사라지지 않는다는 사실을 알게 한다.
“전근대의 집착은 너무나 강렬하다. 생산이나 소비와 달리 사회구조에서 서식해야만 하는 유통경제의 생리의 탓일는지는 몰라도 전통의 반발이 너무나 거세다. 아직도 4일장이나 5일장으로 불리워지고 있는 1천여 개를 넘는 이조(李朝) 향시(鄕市)의 잔영들이 전국에 산재해 있고 바로 생업이기도 한 상인들의 머리는 분명 ‘근대화’에서 스스로를 소외시키고 있다.”
어쨌거나 시간이 지날수록 여러 형태의 시장이 병존하는 건 당연한 일이다. 지금여기만 하더라도, 정해진 시기 마다 열리는 정기시장(5일장, 10일장, 15일장, 3일장 등)은 조선으로부터의 역사를 이어가고, 상설시장이나 상점이 거리를 가득 채운 상점가(商店街), 마을 마다 생긴 스스로 정한 품목을 파는 상회(商會)나 상점(商店), 온갖 물건을 한 장소에 모아 (고급스럽게) 파는 백화점(百貨店)이 식민지기 때부터 지속되고 있다. 산업화가 진행되며 연쇄점(체인스토어/chain store의 이전 번역어)이라고도 불린 슈퍼마케트가 도입됐고, CVS(Convenience Store, 편의점), 할인매장(Discount Store), SSM(Super Supermarket, 기업형 슈퍼마켓)까지 들어섰다.
2. 첫 슈퍼마케트의 등장과 실패, 뉴서울 슈퍼마케트

1966년 12월, 같은 해 4월 서울시장이 된 김현옥은 새로운 발표를 했다. 다가오는 1967년, “전형적인 미국식 「슈퍼·마키트」를 서울역 뒤의 8천8백 평 대지 위에 건립하겠다”며, 이 안에 “수출공업「센터」·가정필수품·교육「센터」 및 「호텔」·「아파트」등”의 배치 계획을 밝혔다.
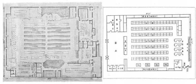
우선 이 “슈퍼·마키트”의 위치를 알아보자. 같은 날 「동아일보」에서는 “현 수산센터 자리(서울역 뒤)에 … 3개년 계획으로 착공하는데 시비와 민간 투자를 합해 10~15억 원의 예산”이 들 계획이라고 밝혔다. 여기에서 대략의 위치를 찾을 수 있다. [그림 1]은 1960년대 서울중앙시장의 위치를 그린 약도로, 서울중앙시장은 현재의 서소문공원의 자리에 있던 시장이다.
1967년, 서울시는 이를 “중앙도매시장 현대화계획”이라 이름붙인 모양이다. 초기에 세운 청사진을 살펴보자. “냉장고·저빙 발효실 및 입하와 출하용 고가도로를 갖는 현대시장(으로)…중앙일용품종합시장 및 「아파트」(로) … 연건평 5천 평의 10층 건물로 시비 7천만 원·민간투자 2억8천만 원이 투입되어 「보일러」시설·「엘리베이터」시설을 갖추는 미국식 「슈퍼·마케트」”를 만들며, “지하층에 각종 「서비스」업 및 기계실을 설치하고, 1층은 식료품, 2층은 의료부, 3층은 일용품·잡화부, 4-5층은 수출「센터」 및 시장 사무실, 6층 이상은 「아파트」”로 층에 따라 용도를 정했다. (그러나 앞서 언급된 “냉장고·저빙 발효실 및 입하와 출하용 고가도로”는 해당 “슈퍼·마키트” 설립 계획이 아니라, 기존 서울중앙도매시장의 현대화 계획의 일환이다.)

계획이 발표된 지 얼마 지나지 않은 1967년 8월 3일 오전 10시, “슈퍼·마키트”의 기공식이 열렸다. 당시 서울시장 김현옥이 참석한 이 기공식에서 변경된 계획이 발표됐다. 일단, 지하 1층과 지상 9층까지의 건물로서 한 층 낮은 건물이었고, 건평 9,350평으로 그 너비를 넓혔다. 내부 배치 역시 “지하…에는 주차장과 기계실이 들었으며, 1층은 식료품부, 2층은 일용잡화부, 3층은 주부공원, 4층은 수출생산품 전시판매와 수술센터, 5층에서 9층까지는 아파트 및 관광호텔”로 결정됐다. 1968년 6월 1일, ‘뉴서울-슈퍼마키트’가 개점했다. 건물의 일부만을 먼저 개장했는데, 점포마다 계산하는 방식이 아니며, 필요한 물건을 수레에 싣고 나갈 때 한 번만 계산하는 방식으로, 지금에는 흔하지만 당시로서는 획기적인 변화였다. 우선 개점하는 지하 1층에는 정육점, 건어류, 생선, 부식물, 된장, 고추장과 ‘카바레’와 ‘비어-홀’을 두고, 지상 1층에는 각종 식료품, 조미료, 식기 매장, 2층에는 전기제품, 귀금속, 약품점포를 뒀다.


개장일에 박정희와 육영수가 방문하여, 설탕과 빵, 돗자리 등 2,675원 어치를 샀다. 게다가 ‘대중소비시대’라는 로스토우의 담론을 기초로 하는 ‘유통근대화’ 작업의 대표적인 시도라는 점에서 ‘뉴서울 슈퍼마케트’는 성공해야만 했다. 600평의 커다란 매장 크기는 이례적이었고, 마이-카 시대에 대비해 매장 전면엔 대형주차장도 갖췄다. 구설에 따르면 하루에 1만여 명이 몰렸고, 평균 6,000명의 구매자가 몰려들었다. 그러나 뉴서울 슈퍼마케트는 4개월 만에 망했고, 임대업으로 전환됐다. 슈퍼마케트 600평 가운데, 200평은 직영하였고 400평은 생산자에게 대여·임대한 직매장이었다. 광고의 주요 품목인 “간장, 조미료, 라면”은 직매장에서 취급하는 바람에 슈퍼마케트 운영에는 도움이 되지 않았다. 바로 옆에 (오래된) 청과물 도매시장과 수산시장이 있어 수산물이나 소채류를 제대로 취급하지 못한데다 운송·보관·포장에 필요한 시설이 충분치 않아 팔리지 못한 소채류를 폐기하며 적자가 누적됐다.
3. 이후, 연쇄점 전략과 문제
그럼에도 유통에 변화가 필요하다는 주장은 끝나지 않았다. 뉴서울 슈퍼마케트가 폐업한 직후, 1968년 11월의 삼풍수퍼마케트, 1970년, 미도파백화점 지하의 미도파슈퍼마케트, 삼선교의 제일슈퍼마케트, 보광동의 보광슈퍼마케트가 설립됐다. 뉴서울 슈퍼마케트의 실패를 통해 슈퍼마케트는 보다 철저히 ‘기획된’ 공간이어야 한다는 문제가 제기됐다. 슈퍼마케트는 경영의 대상이었고, 입지와 건물뿐만 아니라 상품화 계획(merchandising)에 이르는 영역에 대한 고려가 요구됐다. 당시 발간된 경영 관련 잡지에서 서구의 슈퍼마케트 경영법 연구, 즉 상품의 진열 방법과 이에 필요한 설비, 그리고 상품화 방법에 대한 논의를 쉽게 찾을 수 있다. 즉, 슈퍼마케트는 “생산자와 소비자를 직결시킨다는 구매형식”으로 다시금 선전됐고, 1971년만 하더라도 217개의 슈퍼마케트가 운영됐다.

(출처: 金龍春, 1971, “슈퍼마아켓 영업 여기를 주의하라”. 마케팅, 5(4), p.47)
앞서의 실패에도 불구하고, 국가유통정책의 일환으로 슈퍼마켓 연쇄화 사업 실험이 재차 시도됐다. 1971년 3월 31일 사단법인 ‘새마을 슈퍼체인’이 발족됐고, 같은 해 6월 15일 8개 점포가 동시에 참가했다. ‘새마을 슈퍼체인’은 “첫째, 중소상업자의 조직화 및 협업화, 둘째, 유통경로의 정리단축에 의한 소비자 가격의 절감, 셋째, 대량판매와 점포의 근대화로 생산성 제고, 넷째, 양질상품의 염가공급에 의한 소비자 보호, 다섯째, 소비자에 대한 종합일관구매의 편의제공을 통한 우리나라 식료품 업계의 근대화”라는 목적을 갖고, “공동광고 및 포장, 가격표시제 실시, 공동의 상품권 발행 등의 공동사업”을 전개해나갈 계획을 세웠다.
불량식품에 대한 노이로제, 물건을 살 때마다 일어나는 시비 등으로부터 해방되는 계기가 될 것인가 하는 기대 … 문에 들어서면서부터 시원한 실내 공기며 깨끗한 분위기 그리고 핸드카와 카운터에 있는 계산기 등이 언뜻 기존 시장과는 전혀 다른 산뜻한 기분을 느끼게 했다. … 특정 메이커의 물건 몇몇을 제외하고는 거의가 동대문·남대문 시장의 도매상 가격보다 별로 싸지 않고, 동네 단골상점에서 줄곧 대어놓고 사는 시세와도 별차없다. 또 야채류나 생선류는 관리의 철저 등으로 기존 시장 물건보다는 훨씬 신선하고 싱싱하고 비교적 물건을 고루 갖추려는 노력의 흔적은 보여지고 주부들이 한 장소에서 쉽게 물건을 살 수 있다는 큰 이점도 직감할 수 있지만, 맘대로 고를 수 있다든지 적은 량을 구입할 수 없는 단점이 있다. … 값싸고 흔한 서민 상대의 계절야채는 눈에 뜨이지 않았고 쌀이나 소금, 참기름 등 주요필수품이 갖추어져 있지 않아 이곳을 이용하더라도 어차피 다른 시장을 또 다시 다녀야만 할 것 같다. … 적어도 불량상품은 취급하지 않으리라는 기대, 그러나 주부들이 안심하기에는 헛점도 많이 눈에 뜨이고 아직은 이르다. 서민 주부들에게는 아직도 문턱이 너무 높은 것 같은 감을 금할 수는 없었다.
– 31세, 화곡동, 주부
하지만 슈퍼마케트 도입 실험으로 시장의 변화는 당장 크지 않았다. 소비자 가격의 절감은 ‘가공식품’에나 제한됐다. 왜냐하면 “메이커 → 1차도매상 → 2차도매상 → 소매상 → 소비자”에서 “메이커 → 소매 → 소비자”로의 유통경로 변화는 새로 만들어진 (가공 및) 제조업의 유통에나 국한될 뿐, 농·수산물의 유통경로에는 큰 변화가 없었다. 여전히 쌀은 “생산자 → 도매상 → 중간도매상 → 소매상 → 소비자”의 경로를 유지했고, 이 경로는 오랜 시간 공적·사적관계가 중첩되어 만들어져 있었기에 깨어질 리 만무했다. 즉, 슈퍼마케트는 농·수산물의 “유통경로를 단축”하여 소비자 가격을 절감하는 숙제를 바로 풀 수 없었다. 더욱이 정부의 지원 하에 자체 유통망을 갖출 수 있는 미도파, 럭키와 같은 기업이 참여하며 유통의 대량화가 추진되었으며, 중소상인의 기반을 위협하는 방식으로 인위적인 변화를 시도했다. 최근에 이루어진 유통체인과 생산지와의 직거래가 그 최종적 모델로 보인다. 이렇게 본다면, 사실상 슈퍼마케트가 상징하는 유통의 근대화란 유통의 대량화를 전제로 한 시도로서, 이후 제조업과 중산층의 성장을 배경으로 ‘고급한 상업구조’를 구축하는 기초 중 하나였다.


댓글 남기기